写真たっぷり!この物件を公開中
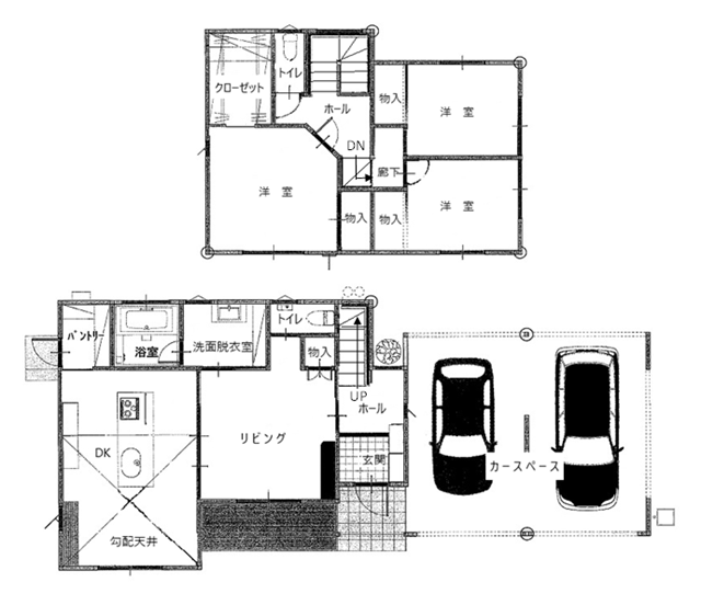
【売モデル住宅】アイランドキッチン必見!天王上北野 3LDK+ガレージ付up
お問い合わせ先
アクネス不動産
男鹿市秋田県男鹿市船越字杉山25番地20
TEL 0185-22-6607 FAX 0185-27-8505
URL:http://www.aknes.jp/ E-mail:realestate@aknes.jp
宅地建物取引業者免許証番号: 秋田県知事 (5) 第1795号




